Met een eigen account kun je panden volgen, opslaan als favoriet, je zoekprofiel opslaan en jouw eigen notities bij een huis maken.
Beschrijving
Omschrijving:Vrijstaande woning met garage op 676m2.
Indeling:
Begane grond:
Binnenkomst via de hal met meterkast, trap en doorgang naar de woonkamer of keuken. De woonkamer is licht, met zicht op de straat én op je diepe tuin. De keuken is, eerlijk is eerlijk, basic. Maar zeg nou zelf, dat is juist ideaal voor de doe-het-zelver of starter die zijn eigen droomkeuken wil realiseren. Juist niet strak ingericht, maar wél vol potentie. Hier ligt écht de basis om er iets prachtigs van te maken.
Aan de keuken heb je een praktische kelderkast, ruime bijkeuken met doorgang naar de garage. Tot slot heb je aan de achterzijde een extra kamer. Een slaapkamer gelijkvloers of een kantoor aan huis?
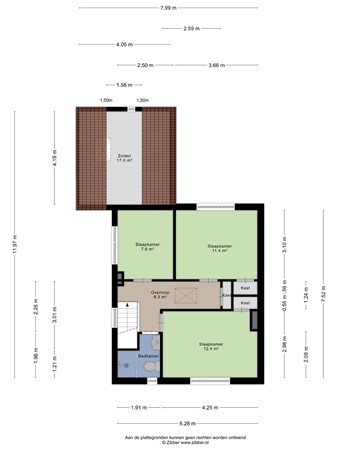
Eerste verdieping:
Boven heb je 3 slaapkamers en de badkamer. De badkamer is voorzien van een douche, wastafel en het 2e toilet.
Tweede verdieping:
Je hebt 2 zolders (1 boven de woning en 1 boven de uitbouw).
Tuin:
Wat meteen opvalt, is die enorme tuin van maar liefst 426 m2. Het totale perceeloppervlakte is zelfs 676 m2. Genoeg ruimte dus!
Bijzonderheden:
* Of je nu meteen wilt verhuizen en stukje bij beetje aan de slag wilt, of alles in één keer aanpakt; alles kan hier.
* 3 tot 4 slaapkamers.
* Ruime garage met berging.
Ligging:
Kloosterzande is nog een echt dorp, maar met wel alle faciliteiten van de stad. School, zwembad, voetbalvelden, tennisvelden, supermarkt en bibliotheek.
Ben jij op zoek naar jouw eerste huis of juist een project waar je echt je eigen draai aan kunt geven? Nou, stop dan maar meteen met zoeken! De Willem Alexanderstraat 16 te Kloosterzande staat nu te koop.
Dus ben jij die starter met frisse plannen, of een klusser met visie neem dan contact op met het kantoor voor een bezichtiging.
Kenmerken
| Overdracht | |
|---|---|
| Referentienummer | 05419 |
| Vraagprijs | € 360.000,- k.k. |
| Aanvaarding | Direct |
| Aangeboden sinds | Vrijdag 13 februari 2026 |
| Bouw | |
|---|---|
| Type object | Woonhuis, eengezinswoning, vrijstaande woning |
| Soort bouw | Bestaande bouw |
| Bouwperiode | 1957 |
| Isolatievormen | Gedeeltelijk dubbel glas HR-glas |
| Oppervlaktes en inhoud | |
|---|---|
| Perceeloppervlakte | 676 m² |
| Woonoppervlakte | 143,5 m² |
| Woonkameroppervlakte | 32,25 m² |
| Inhoud | 662 m³ |
| Oppervlakte overige inpandige ruimten | 34,9 m² |
| Indeling | |
|---|---|
| Aantal bouwlagen | 3 |
| Aantal kamers | 5 (waarvan 4 slaapkamers) |
| Aantal badkamers | 1 |
| Tuin | |
|---|---|
| Type | Achtertuin |
| Oriëntering | Noord west |
| Staat | Normaal |
| CV ketel | |
|---|---|
| CV ketel | Hr-combi |
| Warmtebron | Gas |
| Bouwjaar | 2014 |
| Combiketel | Ja |
| Eigendom | Eigendom |
| Uitrusting | |
|---|---|
| Warm water | CV-ketel |
| Verwarmingssysteem | Centrale verwarming |
| Badkamervoorzieningen | Douche Toilet Wastafel |
| Parkeergelegenheid | Aangebouwde stenen garage |
| Tuin aanwezig | Ja |
| Heeft een garage | Ja |
| Kadastrale gegevens | |
|---|---|
| Kadastrale aanduiding | Hontenisse H 2288 |
| Perceeloppervlakte | 676 m² |
| Omvang | Geheel perceel |
| Eigendomsituatie | Eigen grond |