Met een eigen account kun je panden volgen, opslaan als favoriet, je zoekprofiel opslaan en jouw eigen notities bij een huis maken.
Verkocht
Verkocht: Nieuweweg 56, 4561 BN Hulst
Beschrijving
Omschrijving:Tussenwoning in het hartje van Hulst met de Stadswallen van Hulst in je achtertuin.
Indeling:
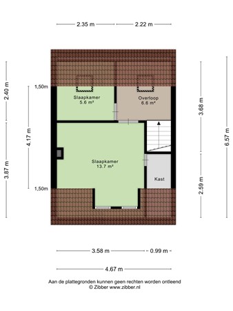
Begane grond:
Inkom in de hal met doorgang naar de woonkamer en eerste verdieping. Je hebt een lekker lichte woonkamer met eethoek. De keuken en de badkamer staan in de uitbouw. De eenvoudige keuken is voorzien van een koelkast, gaskookplaat, vaatwasser en lekker wat kastruimte. In de badkamer staat de douche, wastafel en het toilet opgesteld.
Eerste verdieping:
Op de eerste verdieping heb je de ruime overloop en 2 slaapkamers.
Tuin:
De tuin is grotendeels bestraat en voorzien van een fundering voor het plaatsen van een tuinhuis achterin de tuin.
Bijzonderheden:
* Grotendeels voorzien van dubbelglas
* 2 slaapkamers
* Centrum Hulst
* Aan de stadswallen
Ligging:
Midden in het historische Hulst. Een gebied met een mooie combinatie van winkels, cultuur, horeca en wonen. Er is altijd wel iets te doen! Omringd door de groene stadswallen is de vestingstad Hulst één van de best bewaarde vestingsteden in ons land, echt een unieke plek om te wonen. Het is de combinatie van historische gebouwen, gezellige terrasjes, een verscheidenheid aan winkels en fraaie woonstraten, wat Hulst zo bijzonder maakt. De bourgondische atmosfeer snuift u direct op als u een middagje in Hulst doorbrengt.
Kenmerken
| Overdracht | |
|---|---|
| Referentienummer | 05410 |
| Vraagprijs | € 164.000,- k.k. |
| Status | Verkocht |
| Aanvaarding | Direct |
| Aangeboden sinds | Vrijdag 3 oktober 2025 |
| Laatste wijziging | Maandag 5 januari 2026 |
| Bouw | |
|---|---|
| Type object | Woonhuis, eengezinswoning, tussenwoning |
| Soort bouw | Bestaande bouw |
| Bouwperiode | 1901 |
| Dakbedekking | Dakpannen |
| Type dak | Zadeldak |
| Oppervlaktes en inhoud | |
|---|---|
| Perceeloppervlakte | 99 m² |
| Woonoppervlakte | 64 m² |
| Inhoud | 228 m³ |
| Indeling | |
|---|---|
| Aantal bouwlagen | 2 |
| Aantal kamers | 3 (waarvan 2 slaapkamers) |
| Aantal badkamers | 1 |
| Tuin | |
|---|---|
| Type | Achtertuin |
| Hoofdtuin | Ja |
| Oriëntering | Noorden |
| Staat | Normaal |
| CV ketel | |
|---|---|
| CV ketel | Hr-combi |
| Warmtebron | Gas |
| Combiketel | Ja |
| Eigendom | Eigendom |
| Uitrusting | |
|---|---|
| Warm water | CV-ketel |
| Verwarmingssysteem | Centrale verwarming |
| Badkamervoorzieningen | Douche Toilet Wastafel |
| Tuin aanwezig | Ja |
| Kadastrale gegevens | |
|---|---|
| Kadastrale aanduiding | Hulst A 1454 |
| Perceeloppervlakte | 99 m² |
| Omvang | Geheel perceel |
| Eigendomsituatie | Eigen grond |