Met een eigen account kun je panden volgen, opslaan als favoriet, je zoekprofiel opslaan en jouw eigen notities bij een huis maken.
Beschrijving
Omschrijving:Karakteristieke tussenwoning met uitbouw in het centrum van Hulst met alle voorzieningen op loopafstand.
Indeling:
Begane grond:
Inkom in de hal (met de authentieke tegeltjes) met doorgang naar de woonkamer en keuken. De woonkamer is lekker licht en is aan de achterkant voorzien van een strak zwart kozijn met tuindeur. In de uitbouw staat de keuken, wasmachine ruimte en het toilet opgesteld. De keuken is voorzien van een inductie kookplaat, oven en lekker veel kast- en werkruimte. De droge en ruime kelder is toegankelijk via de keuken.
Eerste verdieping:
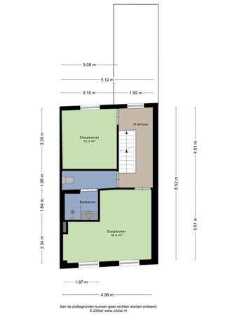
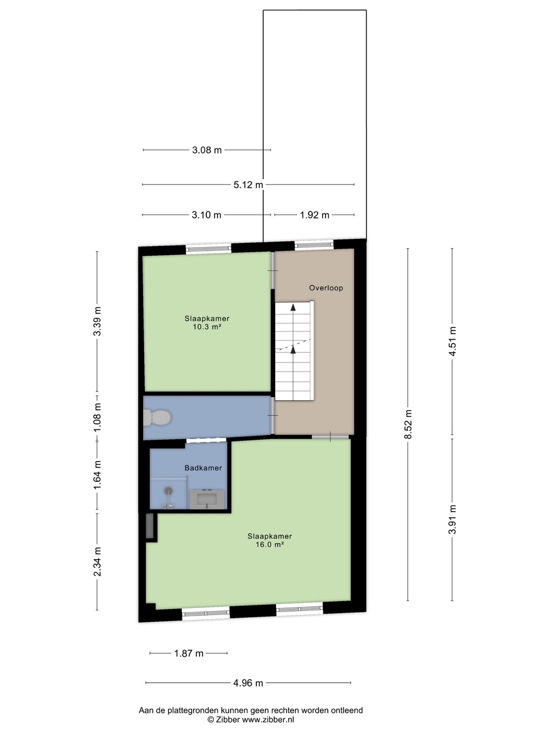
Op de eerste verdieping heb je de 2 slaapkamers en de badkamer. De badkamer is voorzien van het 2e toilet, badkamermeubel en ruime strakke inloopdouche.
Tweede verdieping:
Er is een vaste trap naar de ruime zolder waar met gemak 2 slaapkamers met berging gecreëerd kunnen worden.
Tuin:
De tuin is rondom voorzien van een stenen afzetting en dient nog aangelegd te worden.
Bijzonderheden:
* authentieke elementen (kozijnen voorkant, tegeltjes en trappen)
* Deels gerenoveerd
Ligging:
Midden in het historische Hulst, letterlijk naast de eeuwenoude Basiliek.
Een gebied met een mooie combinatie van winkels, cultuur, horeca en wonen. Er is altijd wel iets te doen! Omringd door de groene stadswallen is de vestingstad Hulst één van de best bewaarde vestingsteden in ons land, echt een unieke plek om te wonen. Het is de combinatie van historische gebouwen, gezellige terrasjes, een verscheidenheid aan winkels en fraaie woonstraten, wat Hulst zo bijzonder maakt. De bourgondische atmosfeer snuift u direct op als u een middagje in Hulst doorbrengt.
Kenmerken
| Overdracht | |
|---|---|
| Referentienummer | 05406 |
| Vraagprijs | € 269.000,- k.k. |
| Aanvaarding | In overleg |
| Aangeboden sinds | Woensdag 1 oktober 2025 |
| Laatste wijziging | Zaterdag 31 januari 2026 |
| Bouw | |
|---|---|
| Type object | Woonhuis, eengezinswoning, tussenwoning |
| Soort bouw | Bestaande bouw |
| Bouwperiode | 1907 |
| Dakbedekking | Dakpannen |
| Type dak | Mansardedak |
| Isolatievormen | Gedeeltelijk dubbel glas |
| Oppervlaktes en inhoud | |
|---|---|
| Perceeloppervlakte | 140 m² |
| Woonoppervlakte | 134,5 m² |
| Inhoud | 511 m³ |
| Oppervlakte overige inpandige ruimten | 9,9 m² |
| Indeling | |
|---|---|
| Aantal bouwlagen | 3 |
| Aantal kamers | 3 (waarvan 2 slaapkamers) |
| Aantal badkamers | 1 (en 1 apart toilet) |
| Tuin | |
|---|---|
| Type | Achtertuin |
| Hoofdtuin | Ja |
| Oriëntering | Zuidoost |
| Staat | Normaal |
| Energieverbruik | |
|---|---|
| Energielabel | C |
| CV ketel | |
|---|---|
| CV ketel | Hr-combi |
| Warmtebron | Gas |
| Bouwjaar | 2018 |
| Combiketel | Ja |
| Eigendom | Eigendom |
| Uitrusting | |
|---|---|
| Warm water | CV-ketel |
| Verwarmingssysteem | Centrale verwarming |
| Badkamervoorzieningen | Inloopdouche Toilet Wastafelmeubel |
| Tuin aanwezig | Ja |
| Kadastrale gegevens | |
|---|---|
| Kadastrale aanduiding | Hulst A 208 |
| Perceeloppervlakte | 140 m² |
| Omvang | Geheel perceel |
| Eigendomsituatie | Eigen grond |