Met een eigen account kun je panden volgen, opslaan als favoriet, je zoekprofiel opslaan en jouw eigen notities bij een huis maken.
Nieuw in verkoop
Beschrijving
Omschrijving:Vrijstaande woning met garage op een perceel van 383 m² — ideaal voor wie graag de handen uit de mouwen steekt! Deze kluswoning biedt een uitstekende basis om naar eigen smaak te moderniseren en een comfortabel thuis te creëren.
Indeling
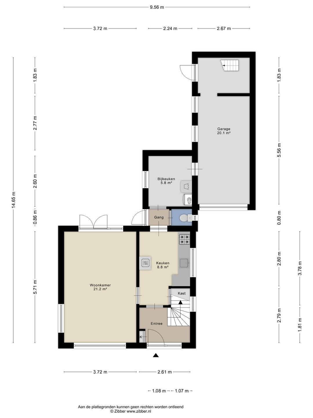
Begane grond:
Via de entree kom je in de hal met meterkast en toegang tot zowel de keuken als de lichte woonkamer. De woonkamer beschikt over tuindeuren die direct toegang geven tot de achtertuin. In de uitbouw vind je het toilet, de bijkeuken met cv-installatie en de doorgang naar de garage met extra bergruimte.
Eerste verdieping:
Op de eerste verdieping bevinden zich drie slaapkamers en de badkamer. De badkamer is eenvoudig uitgevoerd en voorzien van een douche en wastafel.
Tweede verdieping:
Via een luik bereik je de zolder, die extra bergruimte biedt.
Tuin:
De achtertuin is gunstig gelegen op het zuidwesten, waardoor je hier volop van de zon kunt genieten. Een fijne plek om te ontspannen of om je groene vingers aan het werk te zetten.
Bijzonderheden:
* Vrijstaande woning met aangebouwde garage
* Gelegen op een fraai, zonnig perceel
* Drie slaapkamers
* Zonnepanelen aanwezig (huur, eventueel af te kopen)
* Veel potentie voor wie graag zijn eigen stempel drukt
Ligging:
De woning ligt in de Dullaert wijk, een rustige en kindvriendelijke woonomgeving met scholen, sportvoorzieningen en zorg op loopafstand.
De bereikbaarheid is uitstekend:
Hulst: 1,1 km
Terneuzen: 17,6 km
Antwerpen: 33,5 km
Breda: 90,5 km
Kenmerken
| Overdracht | |
|---|---|
| Referentienummer | 05413 |
| Vraagprijs | € 329.000,- k.k. |
| Inrichting | Niet gestoffeerd |
| Inrichting | Niet gemeubileerd |
| Status | Nieuw in verkoop |
| Aanvaarding | Direct |
| Aangeboden sinds | Dinsdag 21 oktober 2025 |
| Bouw | |
|---|---|
| Type object | Woonhuis, eengezinswoning, vrijstaande woning |
| Soort bouw | Bestaande bouw |
| Bouwperiode | 1966 |
| Dakbedekking | Dakpannen |
| Type dak | Dwarskap |
| Isolatievormen | Spouwmuren |
| Oppervlaktes en inhoud | |
|---|---|
| Perceeloppervlakte | 383 m² |
| Woonoppervlakte | 83,4 m² |
| Inhoud | 394 m³ |
| Oppervlakte overige inpandige ruimten | 22,7 m² |
| Oppervlakte externe bergruimte | 8,3 m² |
| Indeling | |
|---|---|
| Aantal bouwlagen | 2 |
| Aantal kamers | 4 (waarvan 3 slaapkamers) |
| Aantal badkamers | 1 |
| Tuin | |
|---|---|
| Type | Achtertuin |
| Hoofdtuin | Ja |
| Oriëntering | Zuid-west |
| Heeft een achterom | Ja |
| Staat | Normaal |
| CV ketel | |
|---|---|
| Warmtebron | Gas |
| Uitrusting | |
|---|---|
| Warm water | CV-ketel |
| Verwarmingssysteem | Centrale verwarming |
| Parkeergelegenheid | Aangebouwde stenen garage |
| Tuin aanwezig | Ja |
| Heeft een garage | Ja |
| Kadastrale gegevens | |
|---|---|
| Kadastrale aanduiding | Hulst F 2244 |
| Perceeloppervlakte | 383 m² |
| Omvang | Geheel perceel |
| Eigendomsituatie | Eigen grond |