Beschrijving
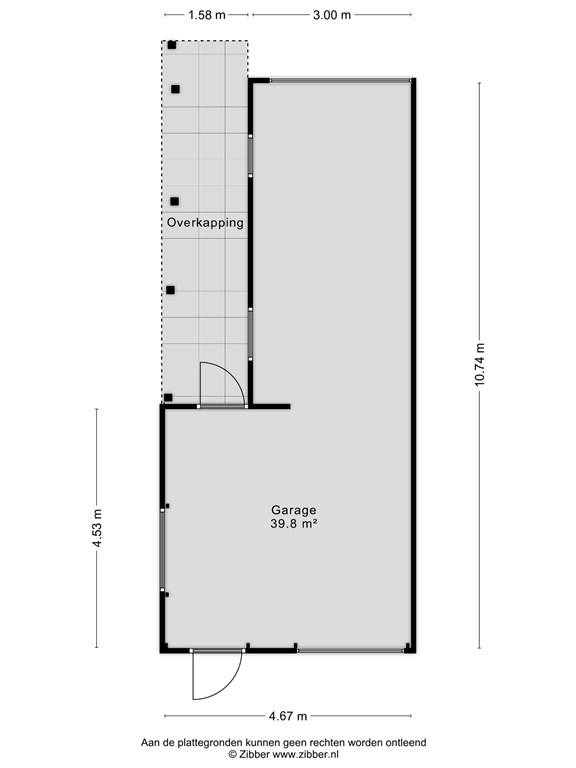
Deze uitstekend onderhouden, luxe afgewerkte semi-bungalow is gelegen op een prachtige landelijke locatie, direct aan het natuurgebied “Canisvliet”. De woning beschikt over een inpandige garage, ruime oprit, vrijstaande houten garage, diverse bergingen, een serre en een royale, groene tuin met veel privacy.
Indeling
Je komt binnen in een ruime hal met marmeren vloer, die toegang biedt tot de woonkamer, slaapkamers, badkamer, toilet, wasruimte en de trap naar de verdieping.
De sfeervolle woonkamer heeft een eikenhouten vloer, een speksteenkachel en prachtig uitzicht op de tuin en het polderlandschap. Vanuit de woonkamer bereik je de serre van 30 m² — een heerlijke tuinkamer waar je het hele jaar door van de natuur kunt genieten.
De open woonkeuken is uitgevoerd in een moderne hoekopstelling en voorzien van een natuurstenen werkblad, inductiekookplaat, combimagnetron, afzuigkap, koelkast en vaatwasser. Aangrenzend vind je een handige kelderkast, een ruime bijkeuken met extra keukenblok, een cv-ruimte met extra boiler en een aparte wasruimte.
Daarnaast zijn er op de begane grond twee ruime slaapkamers en een moderne badkamer met inloopdouche, ligbad, dubbel wastafelmeubel en tweede toilet. In de wasruimte bevinden zich aansluitingen voor wasmachine en droger, en een apart wasmeubel met wasbak.
Eerste verdieping
Op de eerste verdieping bevindt zich een ruime overloop die momenteel als hobbyruimte dient, twee grote slaapkamers, veel bergruimte en een bergzolder.
Tuin
Via de serre loop je direct de tuin in, met prachtig vrij uitzicht over het polderlandschap. Het perceel van ruim 3.000 m² biedt volop ruimte en privacy. De tuin is onder andere voorzien van:
* Vrijstaande houten garage
* Meerdere houten bergingen
* Grote oprit geschikt voor meerdere auto's of een camper
* Diverse terrassen en gezellige zithoekjes
* Een moestuin
Bijzonderheden
* Alle voorzieningen bevinden zich op de begane grond
* Gevelisolatie en dubbele beglazing
* Elektrische rolluiken en horren rondom
* Moderne keuken en badkamer
* 4 slaapkamers (5 mogelijk)
Plattegronden
465261_2D_Begane_Grond_Vissersverkorting_3_Westdorpe_03.jpg
465261_2D_Eerste_Verdieping_Vissersverkorting_3_Westdorpe_04.jpg
465261_2D_Garage_Vissersverkorting_3_Westdorpe_02.jpg
465261_2D_Overkapping_Vissersverkorting_3_Westdorpe_01.jpg