Beschrijving
Omschrijving:
Instapklare, sfeervolle mansarde kap met uitbouw uit de jaren 30!
Indeling:
Begane grond:
Inkom via de hal met meterkast, trapkast en doorgang naar de L-vorm woonkamer. De woonkamer is voorzien van een mooie houten vloer. Heerlijk veel licht, een makkelijke trapkast en de doorgang naar de uitbouw. De keuken met bijkeuken is voorzien van een grijze tegelvloer. In de keuken heb je de vaatwasser, gaskookplaat, koelkast, oven en flink wat werk- en kastruimte. In de bijkeuken heb je ook de aansluitingen voor de wasmachine en droger. Het toilet met fonteintje is ook netjes betegeld.
Eerste verdieping:
Op de eerste verdieping heb je 2 ruime slaapkamers en een badkamer. Via de 2e slaapkamer heb je toegang tot de vide. De voorste slaapkamer heeft een vaste inbouwkast. De badkamer is voorzien van een douche in het ligbad, wastafelmeubel en het 2e toilet.
Tweede verdieping:
De bergzolder is bereikbaar met een trapje.
Tuin:
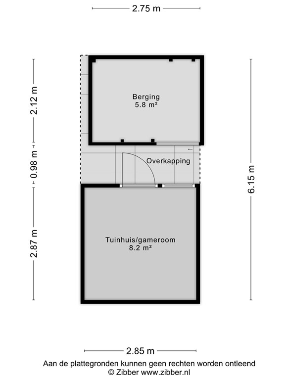
De tuin is netjes aangelegd, heeft 2 zonneterrassen en een schaduwterras. Zeer veel privacy en heerlijk groen. Aan de uitbouw vast heb je de stenen berging en er is nog een recent geplaatst houten tuinhuis met een extra tuinkamer. De extra kamer is goed geïsoleerd is nu gebruik als gameroom, leuk hoor!
Bijzonderheden:
* Instapklaar.
* 12 zonnepanelen + airco
* heerlijke tuin.
* Goede jaren 30 details.
* Goede ligging, alles op loopafstand.
* 2 ruime slaapkamers.
* Kunststof kozijnen met dubbelglas en rolluiken.
Ligging:
De mooie rustige ligging in deze geliefde woonstraat met het centrum van Hulst met alle voorzieningen op loopafstand zal je zeker aanspreken!
* Hulst: 400m.
* Terneuzen: 19,5km.
* Antwerpen: 30,4km.
* Breda: 88,9km.
Plattegronden
182178925_1627080_steen_begane_grond_first_design_20260212_23f548.jpg
182178925_1627080_steen_eerste_verdiepi_first_design_20260212_09b0be.jpg
182178925_1627080_steen_berging_first_design_20260212_6cd820.jpg
182178925_1627080_steen_vliering_first_design_20260212_0f2b0b.jpg